Boarea: 150 m²

|

Antal rum: 6

4 995 000 SEK

Odengatan 4

Vikingstad

 - 

Linköping

Information

Pris

4 995 000 KR

Boarea

150 m²

Biarea

90 m²

Rum

6

Mäklare

Karin Hebbe

Fastighetsmäklare

Linköping

Karin Hebbe

Visning

KONTAKTA FASTIGHETSMÄKLAREN FÖR VISNINGSTID.

Beskrivning

Välrenoverad villa i Vikingstad!

Välkommen till en rymlig och inbjudande villa i hjärtat av Vikingstad – ett hem som kombinerar moderna bekvämligheter med genomtänkta ytor för hela familjen. Här möts du av en nybyggd och stilfull farstu med golvvärme som ger ett varmt och välkomnande första intryck året runt.

Husets sociala delar präglas av en öppen planlösning där det fullutrustade köket smälter samman med matplats och vardagsrummet som skapar generösa ytor för både vardagsliv och umgänge. De fem sovrummen erbjuder gott om plats för både familjemedlemmar och gäster på besök.

Den fulla källarvåningen är en riktig höjdpunkt – nyrenoverad och utrustad med ett exklusivt, helkaklat duschrum med dubbla duschar, spabad, toalett och vattenburen golvvärme. Perfekt för avkoppling och vardagslyx.

Utomhus väntar en lättskött trädgårdstomt som ger fina möjligheter till lek, odling eller avkoppling på det utbyggda altandäcket. Läget är optimalt med bara några minuters promenad till pendeltåget som tar dig till Linköping på endast sju minuter.
I närområdet finns även en välsorterad ICA-butik, skola och förskola – allt för ett bekvämt och smidigt vardagsliv.

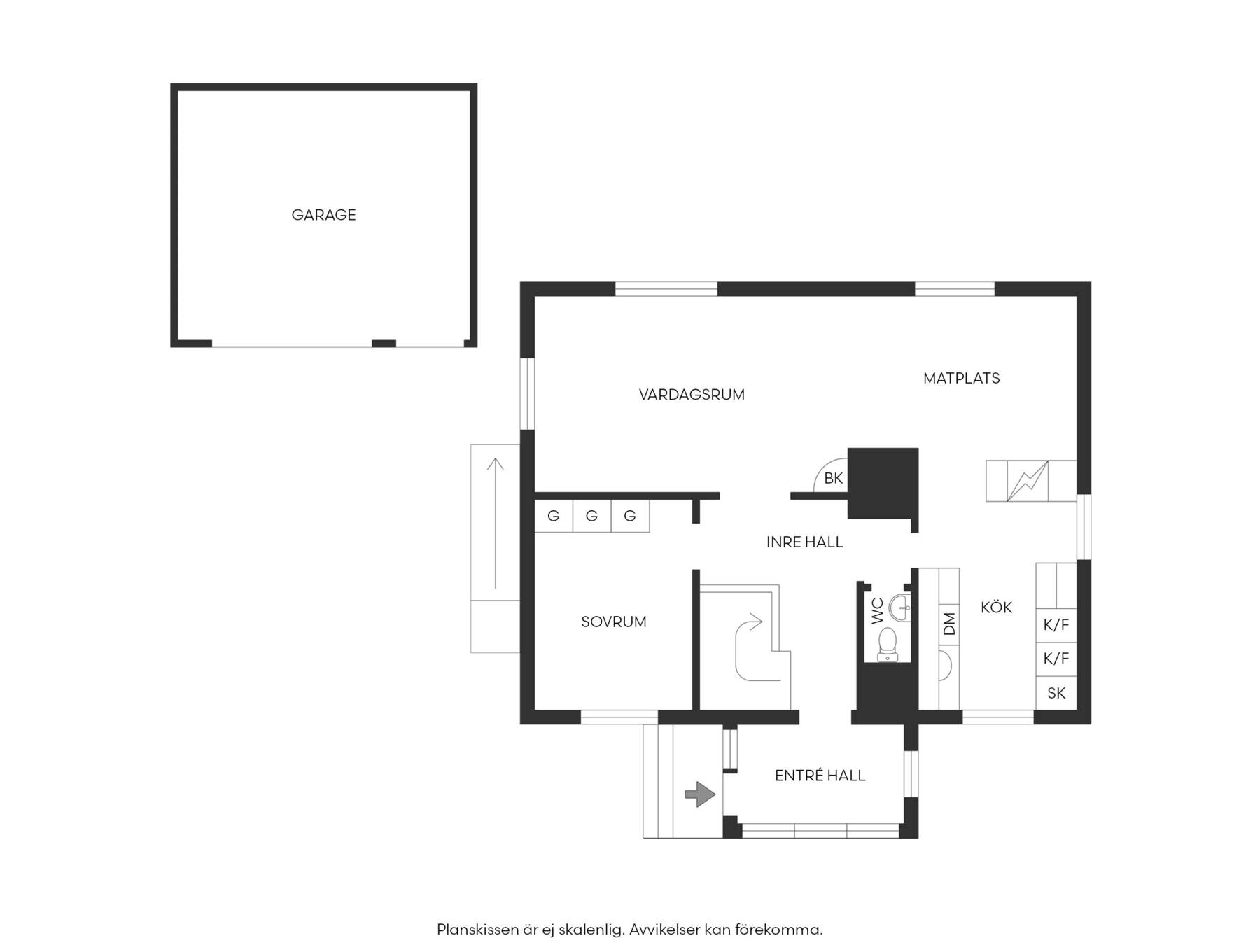
ENTRÉPLAN

ENTRÉHALL

Klinkergolv med vattenburen golvvärme tapetserade väggar och hatthylla för avhängning.

INRE HALL

Ekparkett, målade och tapetserade väggar.

VARDAGSRUM

Ekparkett, målade väggar och värmande täljstenskamin.

MATPLATS

Ekparkett, målad och tapetserad vägg och utgång via dubbeldörrar till altandäck i soligt söderläge.

KÖK

Öppet kök med plastmatta, grå skåpsinredning, bänkskivor i laminat och väggkakel. Den maskinella utrustningen består av spishäll, fläktkåpa, varmluftsugn (2020) dubbel kyl-och frys, diskmaskin (2020)

SOVRUM

Laminatgolv, målade väggar och flera garderober.

TOALETT

Klinkergolv, kaklade väggar, handfat i kommod och toalett.

ÖVRE PLAN

ÖVRE HALL

Ekparkett och tapetserade väggar.

SOVRUM

Parkettgolv, tapetserade väggar, en dubbelgarderob och utgång till balkong i söderläge.

SOVRUM

Laminatgolv och ljust tapetserade väggar

SOVRUM

Laminatgolv och målade och tapetserade väggar.

DUSCH/TVÄTT (2005)

Klinkergolv, kaklade väggar, handfat i kommod, spegelskåp, duschkabin, tvättmaskin och torktumlare (2020) med överliggande bänkskiva i ek.

TOALETT

Klinkergolv, målad vägg, handfat med väggkakel och toalett.

KÄLLARVÅNING

SOVRUM (2013)

Rymligt sovrum med laminatgolv och putsade och målade väggar.

DUSCH/SPABAD (2018)

Klinkergolv med vattenburen golvvärme, kaklade väggar, dubbla duschar, spabad och separat toalett.

Område

Allmänt om området

Vikingstad är ett familjärt område ca 12 km väster om Linköping. Här finns flertalet förskolor samt två skolor. Här finns god service i form av ICA Supermarket med postombud, pizzeria och en bygghandel. Här finns även sommartid trevliga Valkebobadet. Från Vikingstad avgår pendel som på bara 7 minuter tar dig in till Resecentrum.

Fakta

Basinformation

Boarea:

150 KVM

Biarea:

90 KVM

Areakälla:

taxeringsinformation

Fastighets­beteckning:

Bankeberg 9:21

Upplåtelseform:

Friköpt

Kommun:

Linköping

Område:

Vikingstad

Gatuadress:

Odengatan 4

Postnummer:

583 72

Postort:

Vikingstad

Interiört

Antal rum:

6

Antal sovrum:

4

Byggnad

Typ av byggnad:

1½-plansvilla med källare

Byggnadsår:

1954

Kommentar till byggnadsår:

Tillbyggt 2015

Fasad:

Stående träpanel

Fönster:

3-glasfönster (2018)

Tak:

Betongpannor (2017)

Grundläggning:

Källare (ny dränering 2007)

Uppvärmning:

Fjärrvärme

Renoveringar:

Nya VA stammar
Mestadels utbytta el-stammar samt el-central ((2006-2022)
Tillbyggnad entré 2015

Övrigt om byggnaden:

Tilläggsisolerad vind

Övriga byggnader:

Lekstuga

Tomt

Tomtarea:

1069 KVM

Tomttyp:

Trädgårdstomt

Ventilation

Typ av ventilation:

Självdrag

Energideklaration

Datum:

2025-11-19

Energiförbrukning:

148 kWh/kvm (atemp) och år

Energiklass:

D

Vatten och avlopp

Info:

Kommunalt vatten året om. Kommunalt avlopp

Taxeringsinformation

Taxeringsvärde:

2 919 000 KR

Inskrivningar

Planbestämmelser:

Ändring av detaljplan (1995-06-22) Byggnadsplan (1954-12-13)

Driftskostnad per år

El:

12 500 KR

Uppvärmning:

23 300 KR

Vatten och avlopp:

9 300 KR

Renhållning:

3 960 KR

Totalt:

49 060 KR

Fastighetsavgift/skatt:

10 425 KR/ÅR

Pantbrev

Antal:

18

Värde:

2 590 000 KR

Försäkring

Bolag:

Länsförsäkringar

Belopp:

5 400 KR

Fullvärdesförsäkrad:

No

Planritning

Planritning
Planritning
Planritning
Planritning
Planritning
Planritning

Karta

Odengatan 4 - 583 72 Vikingstad

Karta

Låt oss värdera ditt hem kostnadsfritt

boka fri värdering
Fri värdering

Danderyd

Linköping

Norrtälje

Nyproduktion

Täby

Danderyd

Linköping

Norrtälje

Nyproduktion

Täby